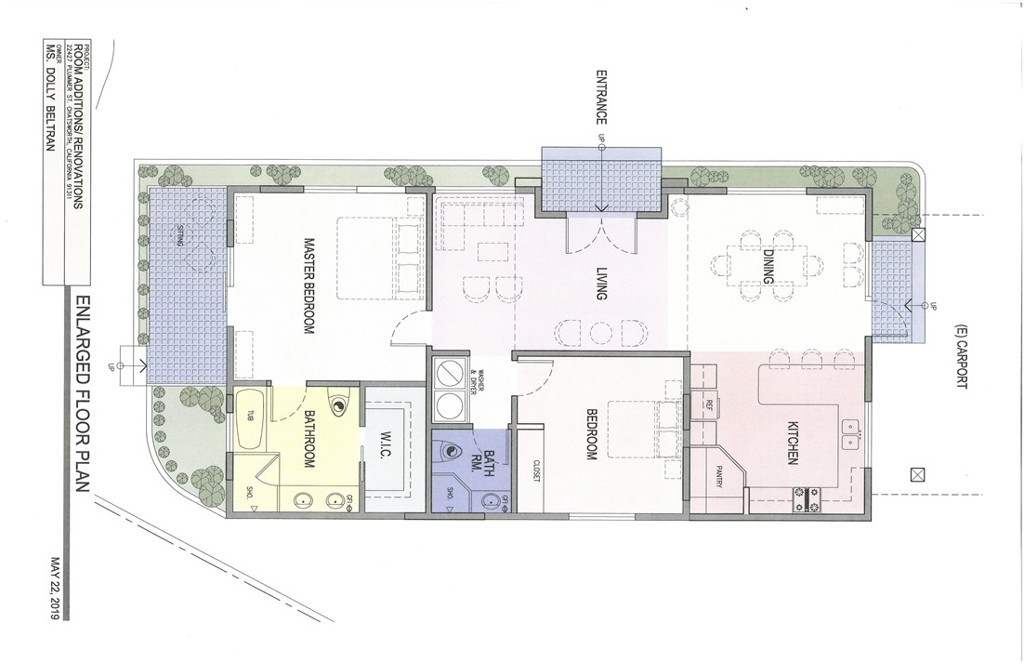
22427 Plummer StreetChatsworth, CA 91311




Developers/Contractors.....Incredible development opportunity on one of the last remaining 2.6+ acre gated estates in Chatsworth. Full architectural plans and drawings are available to convert the existing "Carriage House" into a 2-bed, 2-bath, 1,200 sq ft ADU and add over 300 sq ft to the main home (permits from 2019 have expired). Whether you're looking to renovate, expand, or explore lot split potential (buyer to verify), this property offers unmatched flexibility. The main residence is ready for cosmetic updates, while the second structure—with its own address—presents an ideal rebuild opportunity. Designed by renowned architect Robert Byrd, the original home retains signature character and charm. Existing amenities include a lighted tennis/pickleball/basketball court, pool, three storage sheds, and a detached garage with a workshop. Nestled among mature oak trees, the grounds offer beauty, shade, and total privacy. Property profile designates use as a duplex. Endless potential for investors, builders, or end-users looking to create a custom compound or private estate. Water and Power are back on as of Aug 13th
| 4 months ago | Status changed to Active Under Contract | |
| 4 months ago | Listing updated with changes from the MLS® | |
| 6 months ago | Price changed to $2,800,000 | |
| 11 months ago | Listing first seen on site |
This information is for your personal, non-commercial use and may not be used for any purpose other than to identify prospective properties you may be interested in purchasing. The display of MLS data is usually deemed reliable but is NOT guaranteed accurate by the MLS. Buyers are responsible for verifying the accuracy of all information and should investigate the data themselves or retain appropriate professionals. Information from sources other than the Listing Agent may have been included in the MLS data. Unless otherwise specified in writing, the Broker/Agent has not and will not verify any information obtained from other sources. The Broker/Agent providing the information contained herein may or may not have been the Listing and/or Selling Agent.



Did you know? You can invite friends and family to your search. They can join your search, rate and discuss listings with you.